

500 qm
Wechselspiel aus Materialität und Farbe
2017
Ein Haus um die Jahrhundertwende, entkernt und in seiner Dimension in ein neues Licht gerückt.
Zentrale ist das überdimensionale lichtdurchflutete und beleuchtete Treppenhaus – ein meditativer Raum.
Das Wegesystem durch die Geschosse ermöglicht unterschiedliche Ein– und Durchblicke. Tapezierte Decken, versiegelte Durchgänge, gestaltete Wände und komplett dunkle Räume mit Farbtupfern ... alles scheint verkehrt und anders zu sein.
Ein Catwalk der Sinne, wo die Materialität und Farben in einem Wechselspiel immer wieder eine Harmonie ergeben.
Der Best of Interior Award 2018 bestätigt Purpur ausgezeichnete Innenarchitekturleistungen. Hier können Sie sich die Auszeichnung ansehen.

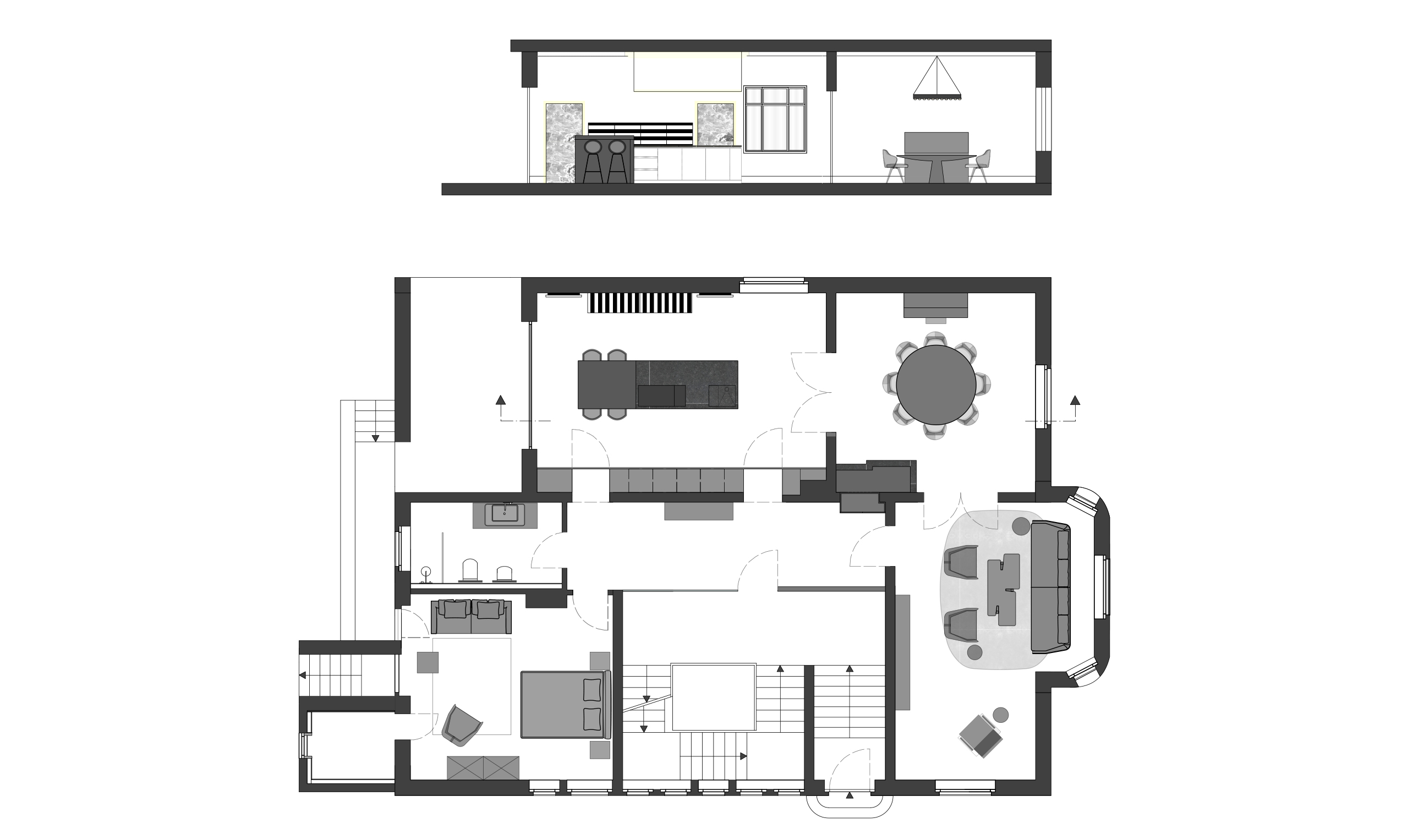
Schnitt




Grundriss
